Porzione di bifamiliare in vendita

Bussolengo, Via monte baldo
€ 280.000
4 locali 4 locali
140 Mq 140 Mq
1 bagno 1 bagno

Porzione di bifamiliare in vendita

Bussolengo, Via monte baldo

Descrizione annuncio

BUSSOLENGO –ricercata porzione di bifamiliare completamente ristrutturata con sfoghi esterni.

UBICAZIONE –in una tranquilla zona residenziale, comoda alle principali vie di comunicazione e a pochi passi dai supermercati e dai principali servizi del paese.

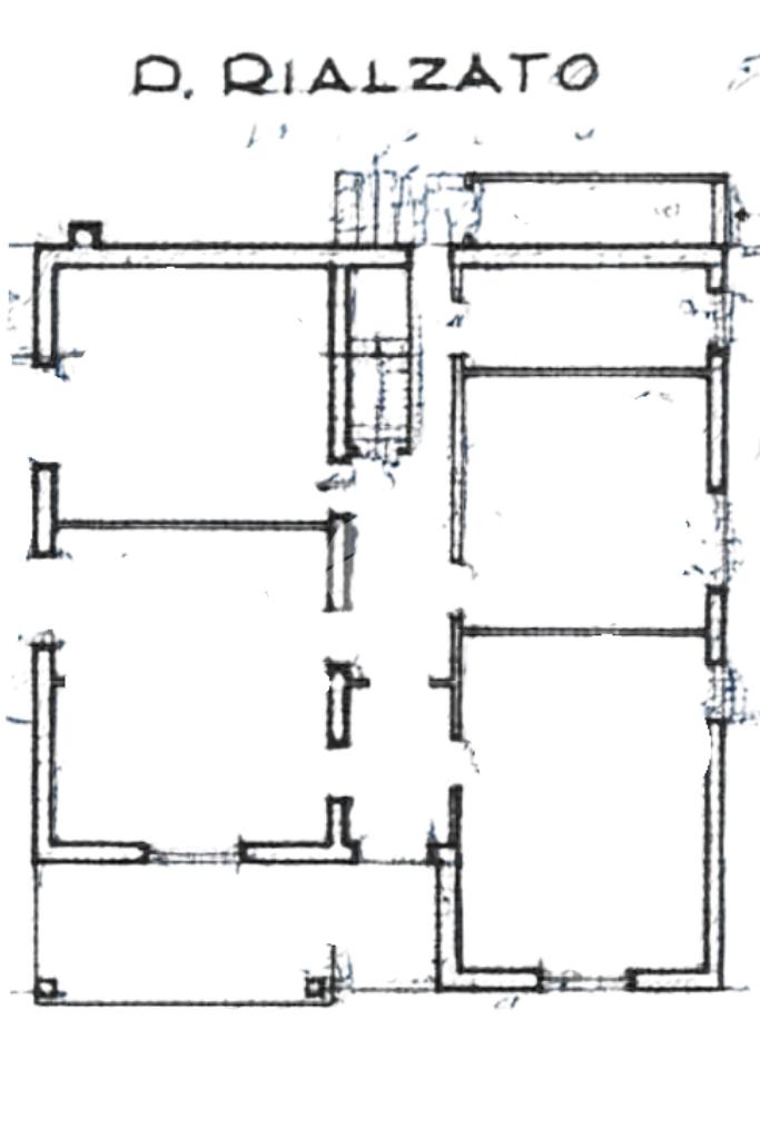
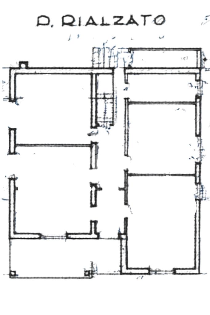
DESCRIZIONE – l’immobile, posto al piano rialzato, è stato completamente ristrutturato, offrendo così ambienti moderni, curati e pronti da abitare. Si distingue per gli spazi ampi e ben distribuiti: una cucina abitabile, un luminoso soggiorno, due camere matrimoniali di generosa metratura, un bagno finestrato con doccia, un terrazzo vivibile per momenti di relax, un pratico ripostiglio e una cantina/tavernetta.

A completare la proprietà, due box auto singoli fuori terra.

Ideale per famiglie che cercano spazio e tranquillità.

CONTATTI – per info e visite 393 95 20 023. Siamo presenti alle pagine Facebook e Instagram Tecnorete Bussolengo.

Mostra tutto

Nelle vicinanze

Trasporto pubblico Trasporto pubblico
Bussolengo c.comm.le
Bussolengo c.comm.le
450 m
Bussolengo centro comm.le
Bussolengo centro comm.le
460 m
Ricariche auto elettriche Ricariche auto elettriche
EVBILITY - stazione di Bussolengo
820 m
Eneldrive Municipio di Bussolengo
1,2 Km
McDonald's Bussolengo
2,6 Km
Emobitaly Centro Commerciale Auchan
2,9 Km
Scuole Scuole
Scuole
660 m
Beni Montresor
780 m
Scuola Elementare Citella
810 m
Scuola Elementare
1,2 Km
Scuola Media
1,2 Km
Farmacia Farmacia
Farmacia
460 m
Farmacia San Valentino
850 m
Farmacia Benincasa
1,2 Km
Farmacia Centrale
1,2 Km
Farmacia Titton Paola
2,3 Km
Ospedali Ospedali
Ospedale Orlandi
1,1 Km
Supermercati Supermercati
Eurospin
120 m
LIDL
220 m
Martinelli
260 m
Conad
790 m
Sigma
1,7 Km
Negozi Negozi
Sorelle Ramonda
500 m
Il Quadrante
500 m
Le 2 Spighe
870 m
Negozi
880 m
L'Albero Alimenti Bio
1,1 Km
Bar Bar
Ritual Bar
630 m
L'Angolo di San Valentino
840 m
Bu
970 m
Roxy
980 m
Chiaroscuro Cafè
1,1 Km
Ristoranti Ristoranti
Pizzeria Gardesana
490 m
La Fucina
770 m
Pizzeria Da Nello
840 m
La Bella Cina
980 m
Poseidon
1,1 Km
Mostra tutto

Caratteristiche

Rif.:
61175803
Piano:
Rialzato di 2
Totale piani:
2
Box:
1
Terrazzi:
1
Camere da letto:
2
Mostra tutto
Prezzo Prezzo
€ 280.000
Rata mutuo Rata mutuo
€ 1.300 / mese
Spese annue Spese annue
€ 0
Proponi il tuo prezzoProponi il tuo prezzo

Classe Energetica

E
E
E
E
E
E
E
E
E
EP globale non rinnovabile:
0.00 kW h/m² anno
EP globale rinnovabile:
0.00 kW h/m² anno
EP invernale del fabbricato:
EP estiva del fabbricato:
Anno di costruzione:
1967
Riscaldamento:
Autonomo
Tipo impianto:
A radiatori
Tipo alimentazione:
Altro

Ti interessa visionare l'immobile?

Fissa un appuntamento  Fissa un appuntamento

Richiedi informazioni

Clicca su Leggi per aprire l'informativa
* Questi campi sono obbligatori

Calcola il tuo mutuo

Semplice e senza impegno
Anticipo

( % )
Mutuo

( % )

pochi semplici passi

inserisci i tuoi dati
Questionario completato
Grazie per aver richiesto un appuntamento senza impegno con un nostro Consulente del Credito e Assicurativo.

Hai inserito correttamente tutti i dati necessari e a breve riceverai una e-mail con un link da convalidare per inviare i tuoi dati.
Affiliato
Bussolengo Tre Srlsu
P.zza Vittorio Veneto, 97 37012 Bussolengo (VR)

Il nostro staff


  • Vittorio Ly
    Affiliato

  • Nadia Zanini
    Collaboratrice

  • Sabrina Russo
    Collaboratrice

  • Cinzia Gamberoni
    Coordinatrice

  • Ornella Loncrini
    Coordinatrice
P.zza Vittorio Veneto, 97 37012 Bussolengo (VR)
Zona: Bussolengo
Mostra su mappa
Orari: Dal Lunedì al Venerdì: 09.00/12.30 e nel pomeriggio 15.00/19.00 - Sabato: 09.00/12.30
Affiliato
Bussolengo Tre Srlsu
P.zza Vittorio Veneto, 97 37012 Bussolengo (VR)

2026 Tecnocasa Franchising S.p.A. - P. IVA 08365160152 - Via Monte Bianco 60/A 20089 Rozzano (MI). Ogni agenzia ha un proprio titolare ed è autonoma. Privacy policy | Policy utilizzo | Cookie policy