Bifamiliare in vendita

Bussolengo, Via A. dall'Oca Bianca
€ 450.000
Prezzo aggiornato
5 locali 5 locali
284 Mq 284 Mq
3 bagni 3 bagni

Bifamiliare in vendita

Bussolengo, Via A. dall'Oca Bianca

Descrizione annuncio

BUSSOLENGO – ricercata porzione di villa bifamiliare con giardino privato

UBICAZIONE –in una tranquilla zona centrale, riservata e priva di traffico, l’abitazione gode della vicinanza a tutti i principali servizi, scuole e collegamenti stradali.

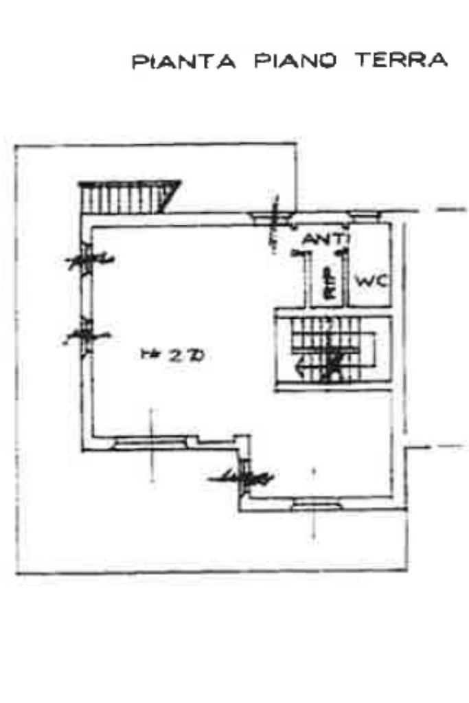
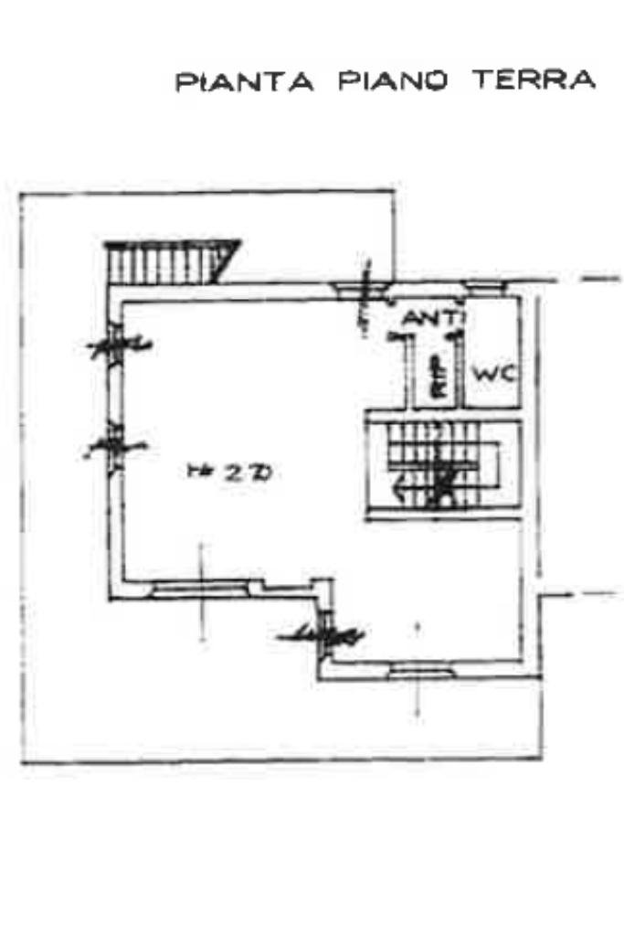
DESCRIZIONE – la villa si sviluppa su due livelli fuori terra, mansarda e piano interrato, offrendo ambienti funzionali e ben distribuiti.
Il piano terra accoglie una ampia e luminosa zona giorno, valorizzata da grandi vetrate con affaccio diretto sul giardino, ideale per momenti di relax e convivialità. Completano il livello un comodo ripostiglio e un bagno finestrato con antibagno.
Il piano superiore è dedicato alla zona notte, composta da due camere matrimoniali, uno studio e un bagno finestrato dotato di doccia e vasca.
Elemento di grande valore è la spaziosa mansarda, completa di cucina, camera matrimoniale e bagno finestrato, con ingresso indipendente dal giardino, perfetta come soluzione per ospiti, figli adulti o uso multifamiliare.
Al piano interrato troviamo una taverna, lavanderia con locale caldaia, cantina e un garage triplo.

Soluzione ideale per famiglie numerose o per chi cerca una casa nel cuore del paese, senza rinunciare alla privacy e alla tranquillità.

CONTATTI - per info e visite 392 94 05 062. Siamo presenti alla pagina facebook Agenzia Tecnorete Bussolengo.

Mostra tutto

Nelle vicinanze

Trasporto pubblico Trasporto pubblico
Bussolengo centro comm.le
Bussolengo centro comm.le
130 m
Bussolengo c.comm.le
Bussolengo c.comm.le
140 m
Ricariche auto elettriche Ricariche auto elettriche
EVBILITY - stazione di Bussolengo
270 m
Eneldrive Municipio di Bussolengo
740 m
McDonald's Bussolengo
2,7 Km
Scuole Scuole
Scuole
420 m
Scuola Elementare Citella
570 m
Beni Montresor
950 m
Scuola Elementare
1,4 Km
Scuola Media
1,4 Km
Farmacia Farmacia
Farmacia
180 m
Farmacia San Valentino
450 m
Farmacia Benincasa
640 m
Farmacia Centrale
720 m
Farmacia Titton Paola
2,8 Km
Ospedali Ospedali
Ospedale Orlandi
690 m
Supermercati Supermercati
Conad
230 m
Eurospin
460 m
LIDL
600 m
Martinelli
770 m
Sigma
2,0 Km
Negozi Negozi
Sorelle Ramonda
70 m
Le 2 Spighe
410 m
Negozi
430 m
Il Quadrante
960 m
L'Albero Alimenti Bio
1,3 Km
Bar Bar
L'Angolo di San Valentino
310 m
Ritual Bar
390 m
Bu
660 m
Roxy
1,3 Km
Chiaroscuro Cafè
1,3 Km
Ristoranti Ristoranti
Pizzeria Gardesana
180 m
La Fucina
210 m
La Bella Cina
420 m
Poseidon
580 m
Pizzeria Da Nello
1,2 Km
Mostra tutto

Caratteristiche

Rif.:
61169783
Piano:
Su più livelli di 3
Totale piani:
3
Box:
1
Terrazzi:
1
Camere da letto:
3
Mostra tutto
Prezzo Prezzo
€ 450.000
Rata mutuo Rata mutuo
€ 2.138 / mese
Spese annue Spese annue
€ 0
Proponi il tuo prezzoProponi il tuo prezzo
Immobile valutato con T·Valuta

Classe Energetica

D
D
D
D
D
D
D
D
D
EP globale non rinnovabile:
94.99 kW h/m² anno
EP globale rinnovabile:
2.44 kW h/m² anno
EP invernale del fabbricato:
EP estiva del fabbricato:
Anno di costruzione:
1995
Riscaldamento:
Autonomo
Tipo impianto:
A radiatori
Tipo alimentazione:
Altro

Prezzo ridotto di €1 (8%%)

Ti interessa visionare l'immobile?

Fissa un appuntamento  Fissa un appuntamento

Richiedi informazioni

Clicca su Leggi per aprire l'informativa
* Questi campi sono obbligatori

Calcola il tuo mutuo

Semplice e senza impegno
Anticipo

( % )
Mutuo

( % )

pochi semplici passi

inserisci i tuoi dati
Questionario completato
Grazie per aver richiesto un appuntamento senza impegno con un nostro Consulente del Credito e Assicurativo.

Hai inserito correttamente tutti i dati necessari e a breve riceverai una e-mail con un link da convalidare per inviare i tuoi dati.
Affiliato
Bussolengo Tre Srlsu
P.zza Vittorio Veneto, 97 37012 Bussolengo (VR)

Il nostro staff


  • Vittorio Ly
    Affiliato

  • Nadia Zanini
    Collaboratrice

  • Sabrina Russo
    Collaboratrice

  • Cinzia Gamberoni
    Coordinatrice

  • Ornella Loncrini
    Coordinatrice
P.zza Vittorio Veneto, 97 37012 Bussolengo (VR)
Zona: Bussolengo
Mostra su mappa
Orari: Dal Lunedì al Venerdì: 09.00/12.30 e nel pomeriggio 15.00/19.00 - Sabato: 09.00/12.30
Affiliato
Bussolengo Tre Srlsu
P.zza Vittorio Veneto, 97 37012 Bussolengo (VR)

2026 Tecnocasa Franchising S.p.A. - P. IVA 08365160152 - Via Monte Bianco 60/A 20089 Rozzano (MI). Ogni agenzia ha un proprio titolare ed è autonoma. Privacy policy | Policy utilizzo | Cookie policy